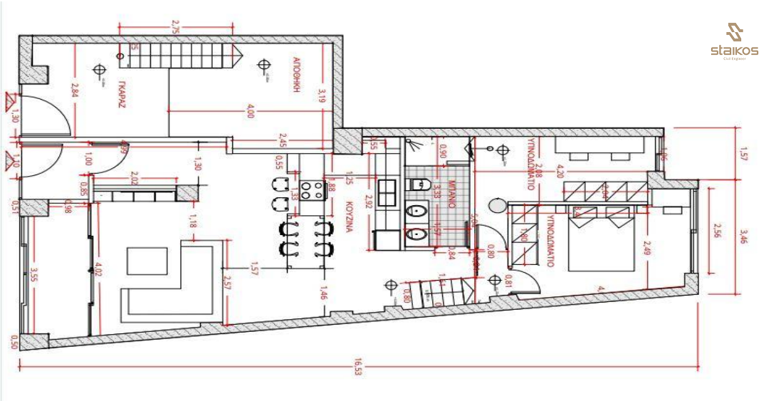
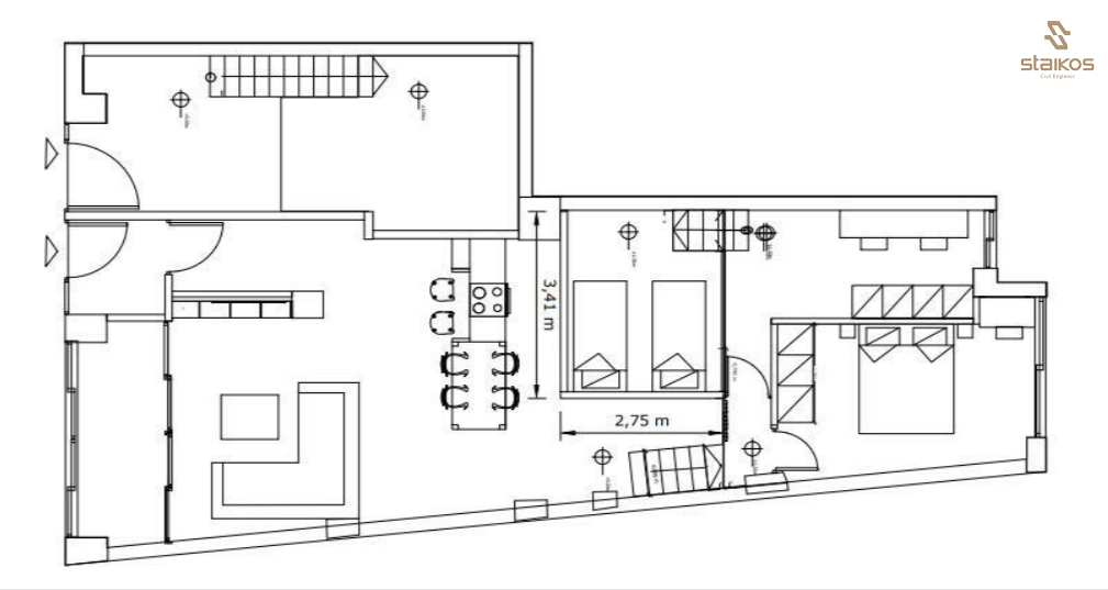
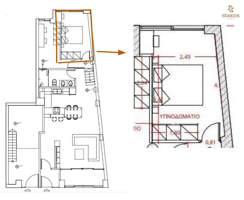
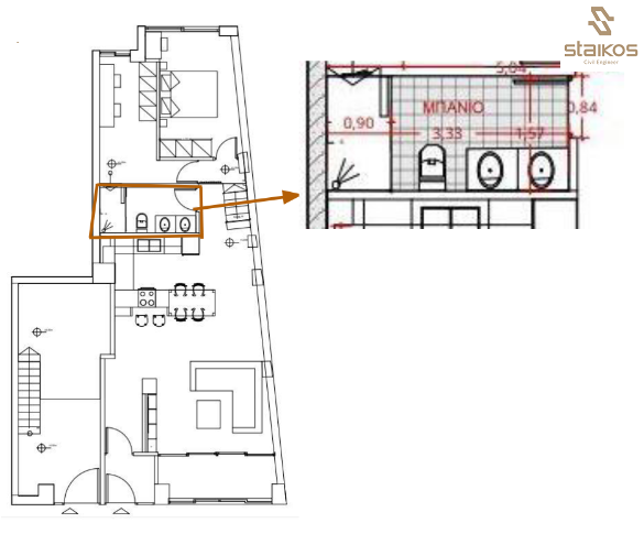
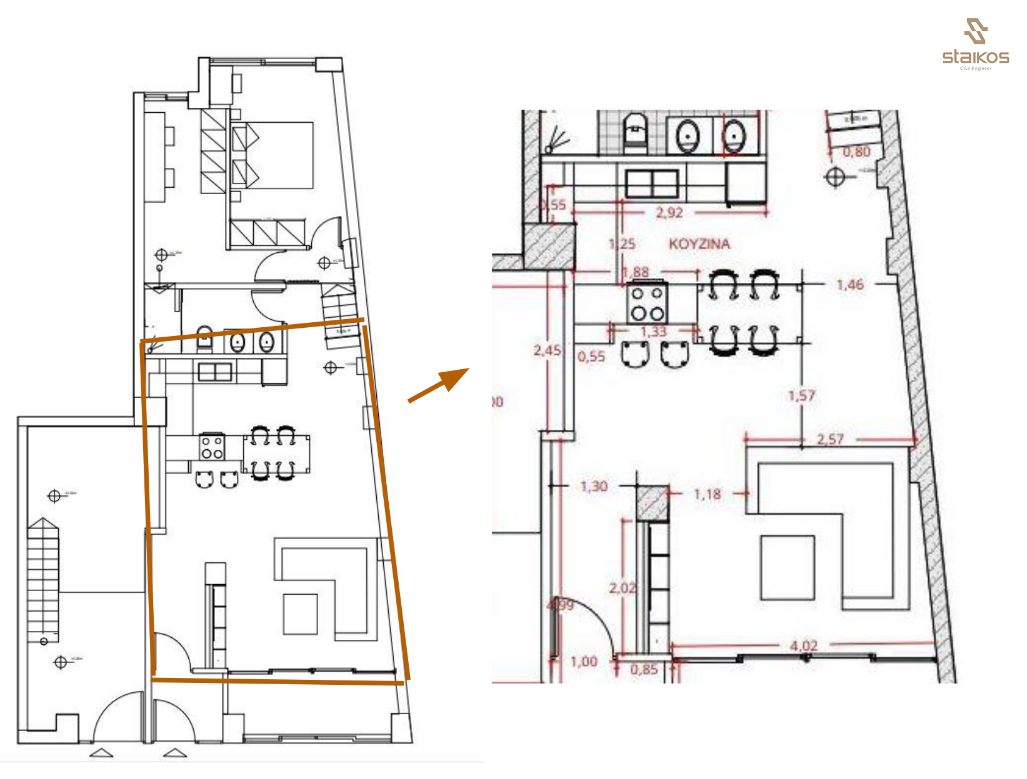
Πρόταση διαρρύθμισης χώρου
- Κάτοψη και διαστασολόγιο για ισόγειο, πατάρι, γκαράζ, παιδικό υπνοδωμάτιο, υπνοδωμάτιο, μπάνιο, σαλονοκουζίνα, χόλ
- Υφιστάμενη χρήση: κατάστημα με εμβαδόν 113,10 τ.μ
- Μελλοντική χρήση: δύο ανεξάρτητοι χώροι με νέα χρήση: Αποθήκη, Οικία
Χρησιμοποιούμε cookies για να βελτιώσουμε την εμπειρία σας και να αναλύσουμε την επισκεψιμότητα του ιστότοπου.ΕντάξειΠολιτική Απορρήτου